开云体育·开云官方网站

ALL INN【凹空间】文化创意产业集成孵化中心设计

案例说明

历史上,这里曾是京城著名的国营工业老厂聚集区,典型的德国包豪斯建筑风格。从村野乡间到红砖厂房,再到文创园区,走过农耕文明,历经工业革命,又迎来新兴产业经济浪潮 。老厂房具有最高9米的超高纵深,巨大的顶穹撑起改革开放的经济脊梁,也将为下一个时代的转变铺垫了不俗的基调。对于这样一个有故事的地方,灰黄的老照片已不能担负起空 间功能的转变重任。公元2016,恰逢天时,地利,人和,它的命运被交付于一个年轻的群体,ALL INN拔地初创。作为聚焦文创产业的孵化样版,帝都东方的地平线上,将平升一座 文创产业圣域,成为CBD中央商务区东扩的新地标。

ZODIAC-ALL INN【凹空间】座落于北京的东南角,一栋建于上世纪80年代的新式联栋厂房里。北临中国传媒大学,西邻中国油画院,东近珍贝奥特莱斯商业中心,南环1500亩森林公园。距CCTV、人民日报、国贸CBD仅10—20分钟车程;地铁传媒大学站距园区北侧直线距离不到800米。
▲主入口公共区
历史上,这里曾是京城著名的国营工业老厂聚集区,典型的德国包豪斯建筑风格。从村野乡间到红砖厂房,再到文创园区,走过农耕文明,历经工业革命,又迎来新兴产业经济浪潮。老厂房具有最高9米的超高纵深,巨大的顶穹撑起改革开放的经济脊梁,也将为下一个时代的转变铺垫了不俗的基调。对于这样一个有故事的地方,灰黄的老照片已不能担负起空间功能的转变重任。公元2016,恰逢天时,地利,人和,它的命运被交付于一个年轻的群体,ALL INN拔地初创。作为聚焦文创产业的孵化样版,帝都东方的地平线上,将平升一座文创产业圣域,成为CBD中央商务区东扩的新地标。
▲公共休闲区
▲公共休闲区旁独立办公区
▲原建筑空间+改造过程
为了兼具国际化视野与本土文化内涵,内置在工业厂房中的ALL INN成为一项极富挑战性的空间再造工程。为此,卝智室内设计与各方团队协同并进,联合21位九大领域资历非凡的设计师、工程师集结北京,组成专家团队,共同参与到这个不可思议的项目中。这座建筑,因其独到的中式围合型庭院空间结构,被定名为“凹”。ALL INN的建筑平面图,好似一幅波澜恢弘的藏宝图——坐北朝南,前窄后宽的巨大后庭,隐喻吞囊万物而不泄的貔貅中腹,故含招财进宝、藏风纳气的祥瑞寓意。
▲设计过程草稿
与离心倾向的负空间相反,正空间一定是围合的向心倾向,吸引人、协调人,具备完成大型项目的环境条件。ALL INN将建筑天然围合出的空间加以完善,由周边向内心收敛,塑造出一种增进交流的凹形气场,生机冉冉。一个巨大的凹字,布局了中国未来的文化创意产业格局。
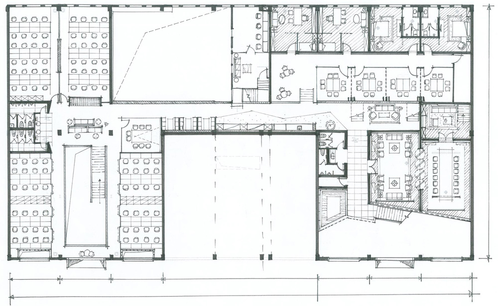
▲一层平面布局
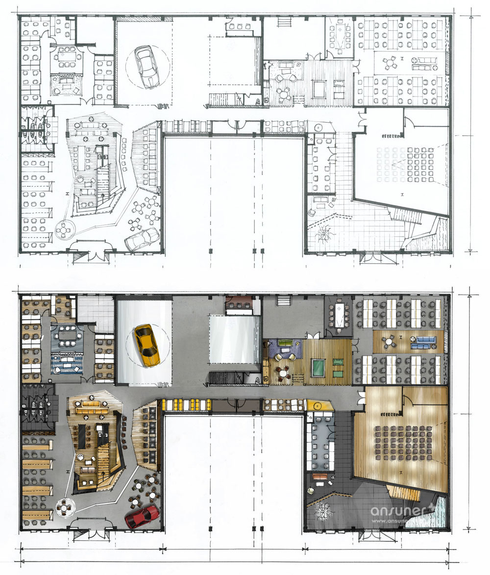
▲二层平面布局
ALL INN承载了无数年轻的梦想。2500平方米商务联合办公空间,可容纳至少300名精英同时办公协作。11间独立办公区,7大会议室,2块超宽敞公共休闲区、专业影音室遍布1-3层,满足日常行政商务需求。大长桌、独立工位、皮质沙发、休闲躺椅,贵宾接待室、多功能展厅、品茶室、雪茄吧,劳逸结合,张弛有度。
▲公共休闲区/卫生间
老厂房的新生,不仅仅有视觉的更新,功能聚合如同建筑呼吸被更新迭代:能源来自太阳能,引进用于高原、海岛、边防哨所的光伏发电系统,使ALL INN这样的大型建筑实现电力自给;空调系统采用新能源——空气能调控温度,是领先国际的大型建筑采暖、通风、空气调节新型暖通解决方案;中央新风净化系统,引入自然新鲜空气,并过滤掉新风里的PM2.5,保证室内空气质量,塑造绿色办公空间;
▲双层独立办公区
▲双层独立办公区
上下层空间分层设计,砖墙、水泥墙面、水泥自流平地面8级以上抗震强度,赋予空间十足的后现代工业范儿;黑色钢板钢架结构搭配金属网,提升了空间的安全度与牢靠度,抗裂性能提高75%以上,塑造了硬朗的空间性格;管线不刻意隐藏,将它灵活转化为空间的视觉元素 ,配置颇具艺术感的吊灯,体现出前卫凌厉的工业精神。
▲独立办公区/会议室
▲休闲走廊
开放、天然的社交空间,会让每个人在工作中受益不少。让舒适的休息室成为办公室的重要部分,也能大力提升项目团队的创造力。于是,ALL INN内置灵感之源,哪怕只是重新布置自己的办公桌,动力和创意都会潮涌而来。
▲双层独立办公区/挑空区域
▲双层独立办公区
▲双层独立办公区
▲双层独立办公区走廊
▲双层独立办公区/左边为垂直速降落杆
▲双层独立办公区/左边为垂直速降落杆
和798不一样,除了面朝大海,春暖花开的文艺情怀,这里包囊更多不仅金玉其外、内里成熟有度的商业文明。也与其他商业空间不同,ALL INN内蕴的价值体系是一种人文人居哲学,将建筑从物理属性升华到价值层面。藉由这种人文价值的驱动,设计师赋予曾经的锅炉厂、木材厂、玻璃厂等工业厂房新的生机。
▲独立办公区
▲独立办公区/会议室
▲双层影棚/北京唯一一处设置在联创办公空间内的影棚
▲办公区会所空间入口