开云体育·开云官方网站

浙江办公室改造空间欣赏

案例说明

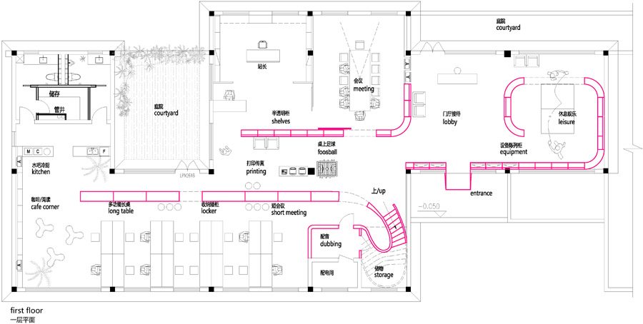
该办公室内装设计项目位于浙江省杭州,虽然基地拥有良好的室外自然景观条件,但原有建筑内部阴暗压抑:已有结构的1层层高3.3m,梁下高度2.6m, 空间比例相对低矮;2层空间的高度具有优势,但1,2层的联系较弱,原有建筑的双层特点也并没有展现出来。


该办公室内装设计项目位于浙江省杭州,虽然基地拥有良好的室外自然景观条件,但原有建筑内部阴暗压抑:已有结构的1层层高3.3m ,梁下高度2.6m, 空间比例相对低矮;2层空间的高度具有优势,但1,2层的联系较弱,原有建筑的双层特点也并没有展现出来。
因此设计一开始考虑的是如何让上下层联系起来,不只是在空间上,也是在未来使用者的心理感知层面上。让楼上和楼下的人都能感觉另一部分成员的存在,营造出团队感。在氛围上希望营造出完全开放,具有空气感的流动空间。不止是单层平面的流动,还是上下层之间的流动感。为了做到这一点,我们做了大量的尝试。Mies的德国馆以及Morandi的绘画提供了一些突破。虽然Mies的作品具有二维的局限性,但在考虑三维层面的突破时,Morandi的绘画操作手法是很好的学习对象。在他晚期的作品里,主体和背景的形体关系以及色彩关系都趋于同化,简单化,一些画作的形体边界和背景融为一体。
如果我们把空间里的家具看成物体(object),把墙体,楼梯等结构看成背景(canvas),通过让家具(object)和结构(canvas)同化,连接,与人的身体最易发生关系的家具就会把这种流动感传递给人体。楼上的空间因为结构和家具的同化,也与楼下联系在一起。最后为了暗示空间的概念和氛围,特意摹写了几张Morandi的画作放在几个特殊的位置。
案例指定产品